De Senzora Grandeur Chalet voelt zich thuis op het water én op het land. Naast een luxe woonboot is dit model de ideale keuze als exclusief recreatie- of zorgchalet.
Senzora Grandeur
De Senzora Grandeur Chalet voelt zich thuis op het water én op het land. Naast een luxe woonboot is dit model de ideale keuze als exclusief recreatie- of zorgchalet.
Senzora Grandeur
Energiezuinig
Lagere energiekosten
Volledig geïsoleerd
Winterbestendig
10 jaar garantie
Zorgeloos genieten Duurzame materialen
Aanpasbare indeling
Naar uw wensen
Uw configuratie
Prijzen zijn inclusief btw
Vrijblijvend en zonder verplichtingen
Stel uw chalet samen
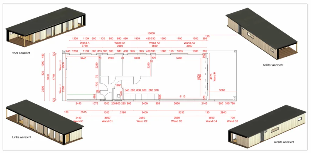
Afmetingen
14m x 5m
Inclusief 3 meter veranda
€150.000
15m x 5m
Inclusief 3 meter veranda
€160.500
17m x 5m
Inclusief 3 meter veranda
€171.500
18m x 5m
Inclusief 3 meter veranda
€182.500
Extra opties
Zonnepanelen
10 Panelen, duurzame energieoplossing Setprijs inclusief montage
€8.800
Transport & Plaatsing
Inclusief stelwerk en materiaal
€9.850
Single-split Aircosysteem
Voor 1 ruimte
€2.500
Duo-split Aircosysteem
Voor 2 ruimtes
€4.750
Luxe Pakket
Zwarte kranen, deurbeslag, schakelaars, Ledspots en buitenkozijnen
€4.000
Bonfix Vorstvrije buitenkraan
Wateraansluiting buitenzijde
€400
Optionele Berging
De Senzora Berging is een geïsoleerd tuinhuis met kunstof gevelbekleding. Kleur is naar keuze. Kies de afmeting van uw optionele berging.
€8.250
€9.750
Inbegrepen in uw Senzora Grandeur
Badkamer & Toilet
- Royale inloopdouche met stort- én handdouche
- Aparte toiletruimte met hangtoilet
- Wastafel met meubel en spiegel
Keuken
- Volwaardige keukenopstelling
- Kookplaat en afzuigkap
- Koelkast met vriesvak
- Vaatwasser
- A-Merk Apparatuur
Comfort & Kwaliteit
- Volledig wintergeïsoleerd
- Vloerverwarming
- Digitale thermostaat per ruimte
- HR++ isolatieglas
- Hoogwaardige laminaatvloer

